Posted: 05.06.2017

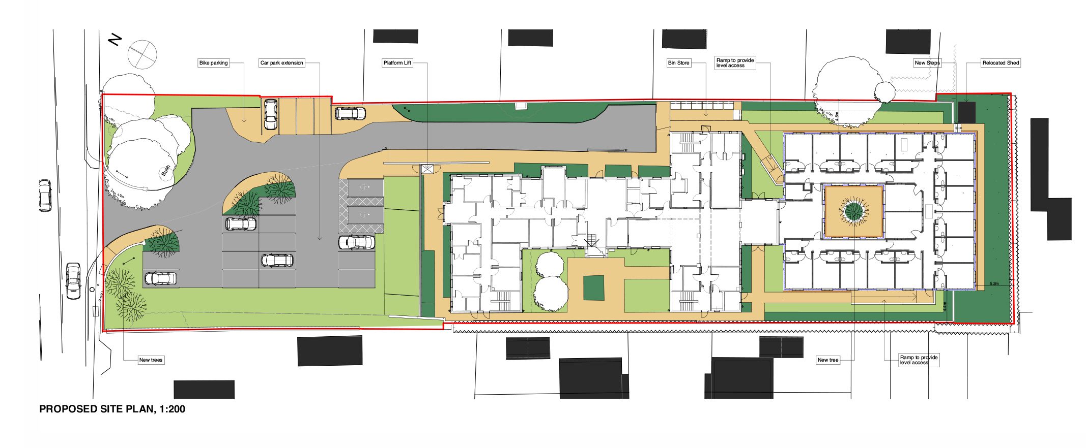
Planning Approval has been granted for a new specialist dementia care wing at the Red Oaks Care Community home.

 

The 15 bedroom extension will provide an appropriate environment for dementia sufferers and forms an important addition to the services already provided by the client, Red Homes Healthcare Group, at the site.

All bedrooms will have ensuite facilities, and the new element also includes a new residents’ lounge and dining area, assisted bathroom, sluice room and staff office. A new central courtyard will be the focus for the new extension.